Team



                  

 

 



Reforma y ampliación vivienda unifamiliar


Estadilla, Huesca
N.E.: 3608

 

Superficie:                 350 m2           
Presupuesto Ej.:       340.000 Euros
Cliente:                      Cliente particular
Fecha Proyecto:       2009-2011


Funciones desarrolladas:

• Redacción proyecto básico, de ejecución
• Dirección de obra


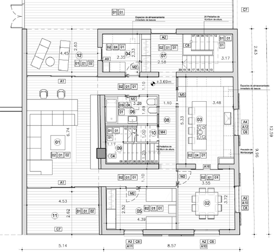
Redacción proyecto básico y ejecución y dirección de obra de proyecto de reforma y ampliación de vivienda unifamiliar entre medianeras.

Se trata de una vivienda unifamiliar de tres plantas de acuerdo a la volumetría actualmente existente. Ésta consta de 4 dormitorios, 2 baños, salón, comedor, cocina, lavadero, y tres plazas de aparcamiento. Estos espacios están organizados de acuerdo a los grados de jerarquía, iluminación y privacidad que requiere cada uno. El acceso se realiza a través de la planta baja, en coche o por un vestíbulo independiente ubicado en fachada noreste. Esta planta está destinada al uso de aparcamiento, y a cuartos de instalaciones.

En la planta primera se desarrollan las estancias de servicios y zonas de día y en la segunda planta se establece la zona de dormitorios.