
Private home design & refurbishment
Estadilla, Huesca
N.E.: 3808
Surface: 350 m2 (3760 ft2)
Budget: 340.000 Euros
Client: Private owners
Com. date: 2009-2011
Tasks developed:
• Site supervision and management
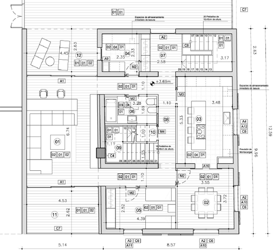
Extension and refurbishment of an existing single family building.
House to be developed in three floors (G+2) according to the existing volume with some new additions on the ground floor and first level. It includes four bedrooms, 2 full baths, dining and living room space, kitchen, laundry room, and three parking spaces. All these spaces are organized according the need for natural lighting and the privacy level required for each of them. Access is done on the ground floor, from garage area by car or through an independent hall area located on the northeaster façade. This level contains the parking areas and all service rooms and storage.
In the first floor the proposal includes service areas and daytime areas. The second floor contains mostly the bedroom areas.