
Subdivision Project sector SUR12
Lleida
N.E.:1167
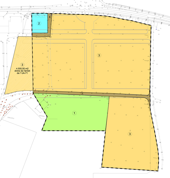
Surface: 74.675 m2
Urb. costs: 1,95 M Euros
Client: Promou CT Open Segre
Com. date: 2007
Tasks developed:
Land readjustment / Reparcelling Project
The structure of the sector area is based on the road general systems established by the PGL, inspired and rooted by its relation with national road N-240, the continuity of the street network form Magraners quarter and the right placing of civic uses reserves in continuity with the Urban Park.
Access to the sector is made through a roundabout on N-240a. However, the sector will be connected extending the streets from Magraners quarter as planned on the PGL.
Buildings are placed as enclosure blocks defining big green squares forming the façade to the road, thus maximizing the relation between the housing units and the free spaces. This layout attends the sound and noise control and the privacy of the units. A different land use zone is planned for each specific combination of Floor Area Ratio and net housing density.