
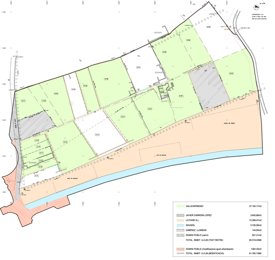
Subdivision Project UA28
Lleida
N.E.:1073
Surface: 61.782m2
Urb. costs: 2,69 M Euros
Client: Owners association
Com. date: 2006
Tasks developed:
· Land readjustment / Reparcelling Project
The basic structure of the proposal derives from the one needed to achieve a coherent set up of the connections and general public lands within the city. The extension of the Ave. Onze de Setembre establishes an axis on the perimeter of the city.
The conforming uses allowed by the P.G.L. for this area, include the option of mixed use within the residential condominium areas according to the neighborhood needs.
The internal road schema projected is according the internal characteristics of the layout and the surroundings and allows for the existing and future road network.