Team



José Ignacio   Aguirre Rodríguez  

 

 



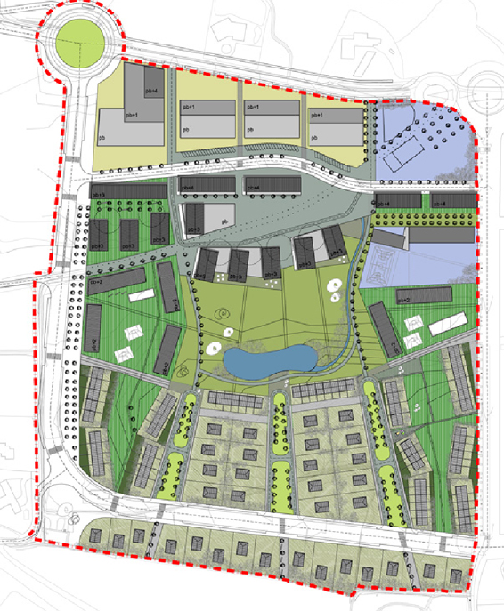
Partial Plan sector SUR32


Lleida.
N.E.:1238


Surface:                       192.307 m2 (2,069,975 ft2)
Urb. costs:                   7,96 M Euros
Client:                           Owners association
Com. date:                   2011


Tasks developed:

· Preparation and approval of the Partial Plan

The design organizes the land use categories around a public central zone, of a significant size and based on a green area forming a big urban park assisted by a relevant pedestrian network organized through several condo buildings including regular and publicly protected housing, including commercial uses on ground floors.
Considering the great accessibility and visibility conditions provided by the N-240 national road (currently part of the municipal road network), the lands for civic uses have been placed on these front north of the site benefiting also from the existence of the church and the nursing school. Part of the floor space on this area is oriented to allocate commercial and tertiary uses including big areas for ground floor parking.