Team



  José Ignacio   Aguirre Rodríguez

 



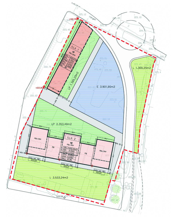
Urban Renovation Plan PMU3 PRB


Balaguer, Lleida.
N.E.:1202

 

Surface:          23.453m2                       
Urb. costs:     1,43 M Euros
Client:             PLM Projectes i Serveis
Com. date:     2007


Tasks developed:

· Approval of the Urban Renovation Plan (PMU)

Development of the green areas included within the present Urban Renovation Plan in in continuity with those included on the surrounding sector PMU1 Inpacsa. Carry out an urban and usage renovation process to allow the inclusion of the former industrial PRB lands to the city urban fabric. Those facilities are currently without a specific use and are clearly obsolete.  
This urban renovation initiative needs to rethink the urban model within the area considering its inclusion in the general city structure, and keeping existing buildings and uses planned for the surrounding areas.
Establish the total replacement of the utility networks and infrastructures and implement the new ones considering the existing connection and the expected new networks.