Team



                  

 

 



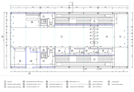
Montcada i Reixac Railway station


Montcada i Reixac, Barcelona
N.E.: 7827

 

Surface:              350 m2               
Budget:               2,32 M Euros
Client:                 GIF (ADIF)
Com. date:          2002


Tasks developed:

• Building design project and detailed design execution project.

Detailed design project for the new commuter rail train station at “Montcada i Reixac” as a part of a big engineering project to define the construction of one of the stretches of the new high speed train line to link Madrid-Saragossa-Barcelona-Frontera Francesa.