Team



           

 

 



Apartment Refurbishment c/Mozart 18


Barcelona
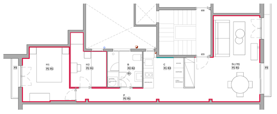
N.E.:8814

 

Surface:                   48 m2  (520 ft2)                
Budget:                    60.000 Euros
Client:                      Private owner
Com. date:               2014


Tasks developed:

· Building design project and detailed design execution project.
· Site supervision and management

Complete refurbishment of an existing small housing unit in a multi-family building located in 18 Mozart street. The building dates from 1980 and is located in an historical neighborhood. The commission included a complete update of the existing unit carrying out improvement works in different areas. The original distribution was significantly modified.